10% KORTING IN NOVEMBER! GEBRUIK CODE BLOCX10 BIJ HET AFREKENEN

Bezig met laden...

Verhoogde plantenbakken voor Woodlands Academy

Woodlands Academy had een grote buitenruimte die ze wilden verbeteren en transformeren tot een inspirerende leeromgeving in de buitenlucht waar leerlingen kunnen leren en zich vermaken.

Het schoolplein was een relatief open, geasfalteerde ruimte en daardoor een perfect leeg canvas voor de plantenbakken van WoodBlocX. Door de grote ruimte kon de school meerdere verhoogde bakken in verschillende vormen kiezen om een anders lege ruimte een stuk aantrekkelijker te maken. De leerlingen waren bij alle aspecten van het project betrokken, te beginnen bij het controleren van de instructies voordat de bouw zou beginnen.

De tuin plannen

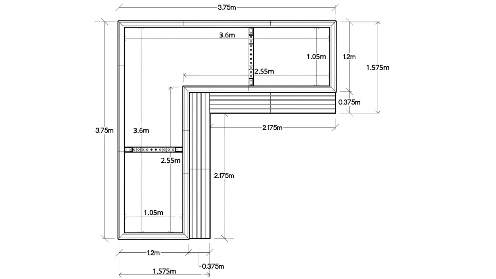
Om de ruimte optimaal te benutten koos de school voor een combinatie van op maat gemaakte L-vormige plantenbanken, rechthoekige bakken en ronde verhoogde bakken ontworpen door onze gratis ontwerpservice. De plantenbank werd gekozen om zitruimte voor de leerlingen te maken. Dankzij het grote aantal verhoogde bakken hebben de schoolkinderen voldoende ruimte om te planten en te leren over kweken en plantengroei, een belangrijk doel van het project.

Voorbereiding en bouwen

Omdat de plantenbakken op een geasfalteerd schoolpein werden gebouwd, was er minimaal voorbereidingswerk nodig. Er werd zorgvuldig gekeken welke delen van het plein het vlakst waren om het bouwen met WoodBlocX te beginnen. De kinderen waren bij alle aspecten van het project betrokken; ze begonnen met het opmeten van de ruimtes om ervoor te zorgen dat de verhoogde bakken op de juiste plaats zouden worden gebouwd. Bij het bouwen op een harde ondergrond kun je ervoor kiezen om hoekbeugels aan je bestelling toe te voegen om de WoodBlocX-structuur aan de grond te verankeren.

Nadat alles was opgemeten, begonnen de leerlingen elke plantenbak laag voor laag te bouwen met behulp van onze eenvoudig te volgen instructies. De leerlingen bevestigden de lagen met pluggen aan elkaar voordat ze een beschermende voering aanbrachten om het hout te beschermen om vervolgens de afdekkingslaag te plaatsen. In dit project werd traditionele afdekking gebruikt om de puntjes op de i te zetten – zie onze afdekkingsopties.

Ten slotte werden de verhoogde bakken met aarde gevuld. De leerlingen plantten daarna verschillende bloemen en struiken voordat ze ter afwerking een laag boomschors toevoegden.

Hoe de tuin nu is

Het nieuwe schoolplein is een prachtig voorbeeld van hoe een lege ruimte getransformeerd kan worden in een kleurrijke buitenruimte die kinderen stimuleert om te leren. De verscheidenheid aan plantenbakken in deze aansprekende buitenruimte maakt de ruimte interessanter en biedt volop ruimte om bloemen, struiken of groenten te kweken – de keus is aan de leerlingen! De plantenbank is de plaats waar de leerlingen kunnen zitten, kletsen of leren. Het belangrijkste is dat het schoolplein een uitnodigende, gastvrije ruimte is waarvan de schoolkinderen kunnen genieten.

Wij bieden verscheidene kits voor verhoogde plantenbakken voor scholen. Kijk eens naar de casestudy’s van onze schoolklanten om inspiratie op te doen voor je eigen projecten!

WoodBlocX-project voor buitenonderwijs


Tijdens dit leerproject in de buitenlucht konden kinderen in een veilige, duurzame en aansprekende omgeving nieuwe vaardigheden ontdekken en ontwikkelen. De structuren zijn duurzaam en kunnen zonder zware machines worden opgebouwd, waardoor ze ideaal zijn voor onderwijsomgevingen en de leerlingen actief kunnen meewerken. Een WoodBlocX-project biedt eindeloze mogelijkheden om leervaardigheden te ontwikkelen en meer in de buitenlucht te zijn.


Creëer je eigen leeromgeving in de buitenlucht

Maak optimaal gebruik van je buitenruimte met deze veelzijdige L-vormige plantenbank. De bank is perfect voor tuinen, binnenplaatsen of scholen en combineert royale beplantingsruimte met ingebouwde zitplaatsen. Hij is niet alleen praktisch, maar ook erg mooi. WoodBlocX is sterk, duurzaam en eenvoudig te bouwen en biedt een veilige, onderhoudsarme oplossing die jarenlang meegaat.