Bezig met laden...

Luke’s keerwand met plantenbakken en traptreden

Luke had een structuur op maat nodig om de ruimte tussen zijn terras en gazon te verbinden als onderdeel van zijn lopende tuinrenovatie. In plaats van gewoon een aantal standaard traptreden te bouwen, was er een enorme kans om plantenbakken te integreren en zo een kleurrijk en aantrekkelijk pad tussen de twee ruimtes te maken. Het was belangrijk dat het ontwerp zo naadloos mogelijk in de ruimte zou passen, zonder tussenruimtes aan elke kant.

Nadat de uitbreiding van het huis en de aanleg van een terras aan de achterkant van het huis waren voltooid, was er een behoorlijk groot hoogteverschil van 1,30 meter tussen de boven- en onderkant van de helling. Het was ook nogal een lastige ruimte omdat er aan weerszijden van de helling geen speelruimte was. De rest van Luke’s tuin bestond uit gazon, zonder ruimte voor beplanting.

Luke’s idee was om een trap te bouwen met aan weerszijden plantenbakken op verschillende niveaus die als keerwand zouden dienen – dit zou enkele niveaus voor beplanting creëren. Hij overwoog om spoorbielzen te gebruiken en het zelf te bouwen, maar de uitvoering van het hellende ontwerp was erg veeleisend om de stabiliteit te garanderen (om nog maar te zwijgen over al het benodigde zaagwerk ter plekke!). Luke had ook een plaatselijke aannemer gevraagd een offerte te geven voor het bouwen van een stenen constructie, maar dit bleek te duur en het resultaat was niet erg natuurlijk.

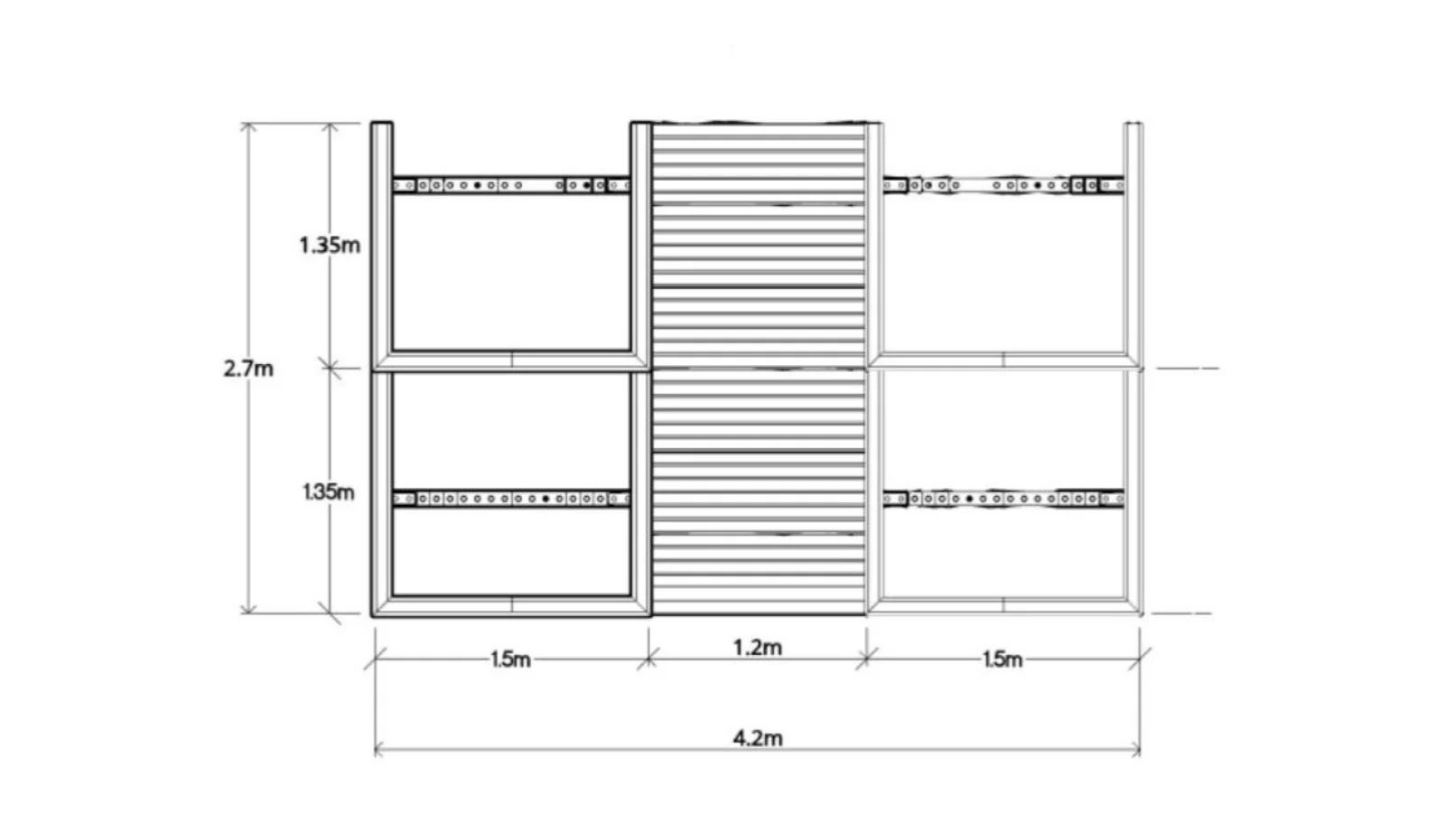
De tuin plannen

Luke had nagedacht over spoorbielzen en alternatieven in steen, maar hij was niet echt overtuigd van deze opties en ging online op zoek naar inspiratie voor keerwanden en trappen. Nadat hij WoodBlocX had gezien, besefte Luke al snel dat met ons unieke bouwsysteem van houten blokken eenvoudig een keerwand met plantenbakken en traptreden kon worden gemaakt. Hij stuurde enkele afmetingen, schetsen van zijn idee en foto’s van de tuin naar ons ontwerpteam via onze gratis ontwerpservice.

Ons deskundige team van WoodBlocX-ontwerpers ging aan de slag om een op maat gemaakte structuur voor de helling in Luke’s tuin te ontwerpen die kon worden gebouwd zonder al te veel grond te verwijderen. De bovenkant van de structuur moest ook gelijk eindigen met de bestaande hoogte van het terras. Het uiteindelijke ontwerp bestond uit twee grote plantenbakken op verschillende niveaus (om grond tegen te houden) aan weerszijden van de zes traptreden in het midden. De bovenste plantenbakken in het ontwerp maakten gebruik van de bestaande fundering van het terras om het benodigde aantal WoodBlocX te verminderen en zo de totale projectkosten te verlagen.

Voorbereiding en bouwen

Voordat Luke ging bouwen, was het essentieel dat hij de grond voor zijn ontwerp voorbereidde. Hoewel de structuur slim was ontworpen en was afgestemd op de tuinhelling, moest Luke grond uitgraven om ruimte te maken voor de interne steunbalken zodat deze gelijk en vlak met de grond konden worden geplaatst. Deze fungeren als ‘verankeringen’ die helpen om de hele constructie veilig aan de grond te verankeren. Bekijk deze video om het grondvoorbereidingsproces te zien!

Het onderste deel van de helling moest ook volledig vlak worden gemaakt, zodat de eerste rij WoodBlocX correct kon worden geplaatst. Tijdens het graafwerk ontdekte Luke dat zijn afvoerpijp daar onder de grond liep. Eén blok werd op maat uitgesneden om over de pijp te passen en deze ongestoord te laten onder de keerwandstructuur.

Hoe de tuin nu is

De uiteindelijke WoodBlocX-structuur is een fantastisch voorbeeld van hoe onze ontwerpers een structuur kunnen creëren die perfect bij een ruimte past zonder jouw tuin ooit te bezoeken! Luke’s ontwerp dient talloze doeleinden: het houdt de grond tegen in het hellende deel, biedt toegang via traptreden tot het onderste deel van de tuin en biedt volop beplantingsruimte voor een grote verscheidenheid aan struiken en planten. Onze traditionele afdekking geeft het terrasvormige ontwerp een zekere elegantie. En doordat het WoodBlocX-hout onder druk is behandeld, is de structuur eenvoudig te onderhouden en gaat deze nog jarenlang mee! Bekijk deze video om te zien hoe Luke zijn ontwerp bouwt.

Luke heeft in de vierkante plantenbakken een verscheidenheid aan sierplanten gezet, die geselecteerd zijn om het hele jaar door consistentie en kleur te geven. Via de treden in het midden is deze beplantingsruimte goed toegankelijk voor onkruid wieden en verzorgen van de planten.

Bouwen met WoodBlocX


Luke zei: "In het begin zag ik er een beetje tegenop om de structuur te bouwen, maar toen ik eenmaal de instructies had gelezen met de laag-voor-laag aanwijzingen, was ik aangenaam verrast! Ik merkte dat toen de eerste en tweede laag eenmaal op hun plaats waren, ik de structuur heel snel kon bouwen. De houten blokken waren gemakkelijk te hanteren en de pluggen kon ik eenvoudig erin hameren. De interne steunbalken houden de structuur bij elkaar en maken de wanden van de plantenbak echt stevig. Ik heb het hele ontwerp in iets meer dan een week gebouwd, door in de avonden na mijn werk en een weekend te werken. Alles bij elkaar ben ik zeer tevreden over de uiteindelijke constructie. De natuurlijke look van het hout past goed bij mijn huis en zorgt voor een mooie verbinding tussen het gazon en het nieuwe terras. Nu de beplanting is gezet, verheug ik me erop te zien hoe de planten de ruimte groen en natuurlijk maken."


Ontwerp een keerwand met planten op niveaus

WoodBlocX kan worden gebruikt om grond tegen te houden en tegelijkertijd beplantingsruimte te creëren. Keerwanden zijn eenvoudig te bouwen, zonder elektrisch gereedschap. Onze houten BlocX zijn het perfecte product voor hellende tuinen wanneer alternatieven te duur blijken te zijn.